Inicio
Proyectos
Servicios
Noticias
Nosotros
Contacto
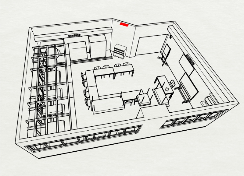
Samsung
Sede Barranquilla
Características
Ciudad
Bogotá D.C.
Dimensiones
66M X 6M
Galería
Proyectos Relacionados
HATSU Y BRETAÑA PUNTA DE GONDOLA
¡Ir allá!
HATSU RECUBRIMIENTOS DE COLUMNA
¡Ir allá!
MAC AEROPUERTO
¡Ir allá!
Nespresso Medellín
¡Ir allá!